获取更多信息请联系
招商客服
招商中心
评分: 5.0
400-810-6920转3001
乔迁
乔迁
评分: 5.0
400-810-6920转3265
面积和价格仅供参考
告诉我们您的找房需求,乔迁为您提供专业服务,10分钟内响应,0佣金找房。
求租该楼办公室,请拨打 18911873477
楼盘信息
-
写字楼
- 30.00元/m²/月
- 绿地控股
- 中央空调
- 仲量联行
- 地下257个
-
是
楼盘描述
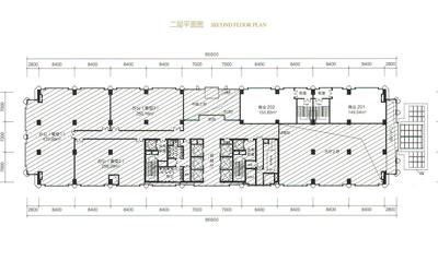
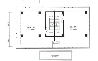
绿地金融中心位于北京三元桥,由4座独栋商业、16面商业展示空间,6米层高,退台式设施,顶层赠送花园,单栋约500-800平米,2层产权空间,4层使用空间。
楼内配套
- 餐饮
- 银行
- ATM
周边楼盘
乔迁为您提供绿地金融中心出租信息,租赁热线—“18911873477”,优选三元桥绿地金融中心出租的办公室房源,大量图片,租金多少等信息,免佣,一对一专业服务.乔迁,让您找绿地金融中心办公室更简单。
























