面积和价格仅供参考
告诉我们您的找房需求,乔迁为您提供专业服务,10分钟内响应,0佣金找房。
楼盘信息
-
商住公寓
- 北京高地物业管理有限公司
- 地上499个
楼盘描述
本项目坐落于朝阳北路、南三里屯路交叉口东北角。为北京CBD核心区域的高档甲级写字楼。项目建筑面积73700平方米,其中地上写字楼面积52600平方米,银行、高档餐饮、商务配套面积0.45万平方米,地下为员工食堂和三层车库。毗邻北京第一、二使馆区,地处CBD国贸商圈,北与东直门国门商圈和燕莎商圈交汇,西靠朝外商圈,向东与京广中心、央视连成一线。项目处在几大东部经济巨头的交融之地,直通三里屯酒吧街,又有使馆区的涉外优势,地理位置优越。紧邻朝阳北路和南三里屯路,朝阳北路主干道东西贯通,东接东三环主路,西达东二环朝阳门桥,交通便利。
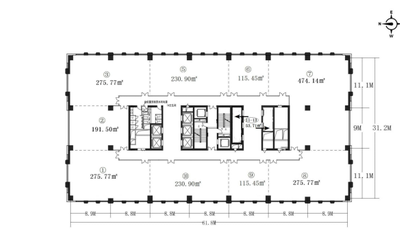
建筑特点
项目写字楼为框架结构,楼体高度为99.95米,外部以蓝色方形玻璃幕覆盖,形象鲜明,尽显现代简约时尚风范。两个巨大的弧形白色雨蓬位于大厦主要出入口外,给人以视觉的震撼又可充分发挥在恶劣天气下遮风避雨的功能。大厦内部大堂挑高三层达11.8米,豪华气派,12部国际知名品牌电梯高低分区,标准层面积约2166平米,户型面积灵活,可任意组合商务空间,满足不同企业办公需求。各项设备设施、管理系统均采用国际知名品牌和先进的技术,双路供电,变压器4*200KVA,电力供应充足,实现了办公、楼宇管理、通讯、消防、安保等自动化,为客户提供高效、舒适的办公环境。写字楼商业设施和旁边的酒店式公寓,将为客户提供最便捷的日常配套服务。高地物业作为国内知名的物业管理企业将为大厦的客户提供专业、高效的物业管理
周边楼盘
乔迁为您提供复星国际出租信息,租赁热线—“18911873477”,优选CBD复星国际出租的办公室房源,大量图片,租金多少等信息,免佣,一对一专业服务.乔迁,让您找复星国际办公室更简单。










